Located on the prestigious Isidora Goyenechea Avenue, in the heart of El Golf neighborhood in Santiago, Benjamín Building stands as a work of avant-garde architecture that responds intelligently and sensitively to its surroundings.
Designed by Archiplan in collaboration with Francisco Izquierdo Arquitectos, this 15-story building stands out for its slender and elegant massing, rising with sobriety and character on one of the most dynamic and strategic corners of the city’s eastern district.
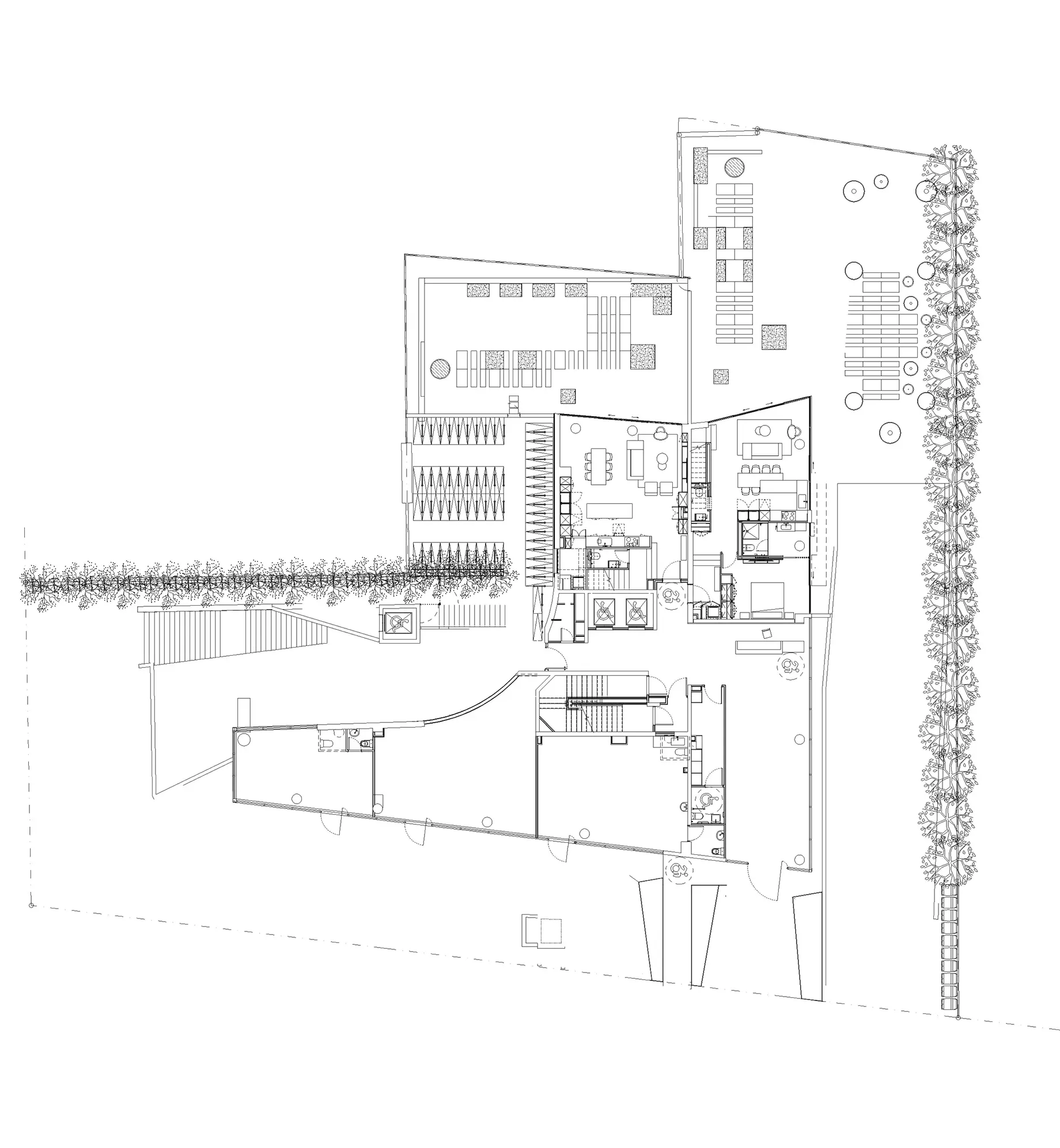
The project embraced the challenge of being situated on a complex yet strategically positioned site at a key intersection, requiring a precise architectural solution. The main façade is defined by clean, refined lines that convey a sober and contemporary image. At the rear, a graceful curvature introduces movement and fluidity to the overall volume, enriching the architectural composition from a less obvious but equally expressive perspective
Location:
CHILE, Metropolitan Region, South AmericaInterior Design:
Anna DesignSurface:
10.917,57 m² - 117.515,74 ft2Year:
2024Lighting Design:
Mónica PérezState:
FinishedArchitecture Team:
ARCHIPLAN + Francisco Izquierdo ArquitectosTendency:
Mixed UsesPhotography:
Daniel PinillaCUSTOMERS:
Exxacon ChileDestiny:
Residencial
Location
At the intersection of Isidora Goyenechea and Benjamín streets, a key urban node in Las Condes.
Design
A clean volume that adapts to the site’s complex geometry emerges with clear lines, acknowledging the corner on which it stands.
Habitability
The residences feature spacious terraces, functional layouts, and modern finishes that enhance overall quality of life.
Trade
Three commercial spaces on the first floor generate direct interaction with the public space, energizing the environment.
Mixed Uses
The residential and commercial spaces are integrated to enliven the surroundings, activating the façade at the ground and plinth levels while maintaining residential privacy.
Urban reference
Its location and strong form establish the building as an architectural landmark.

Mixed uses
Benjamín Building stands out for its ability to seamlessly integrate commercial and residential uses. At its base, it features a commercial plinth with an English courtyard layout, allowing retail spaces to develop on a semi-basement level with direct access from the street. This strategy not only enhances the pedestrian experience but also reinforces the area’s urban vitality, activating the façade and establishing a continuous dialogue between the building and its immediate surroundings.

The architectural language of the building is distinctly avant-garde, characterized by pure lines, refined proportions, and materials that convey quality and durability. The integration of mixed uses, combined with its sober and contemporary design, positions it as a benchmark for new urban living in contexts of high density and elevated standards.
MATERIALITY AND LIGHT
The post-tensioned slabs allow for spaciousness and spatial continuity.
The use of glass, concrete and modern textures give identity to the project.


The interior design reinforces the project’s overall quality through a refined approach that emphasizes the nobility of materials and meticulous attention to detail. High-end finishes define sober and elegant interior spaces, perfectly aligned with the expectations of a premium urban environment such as El Golf.

